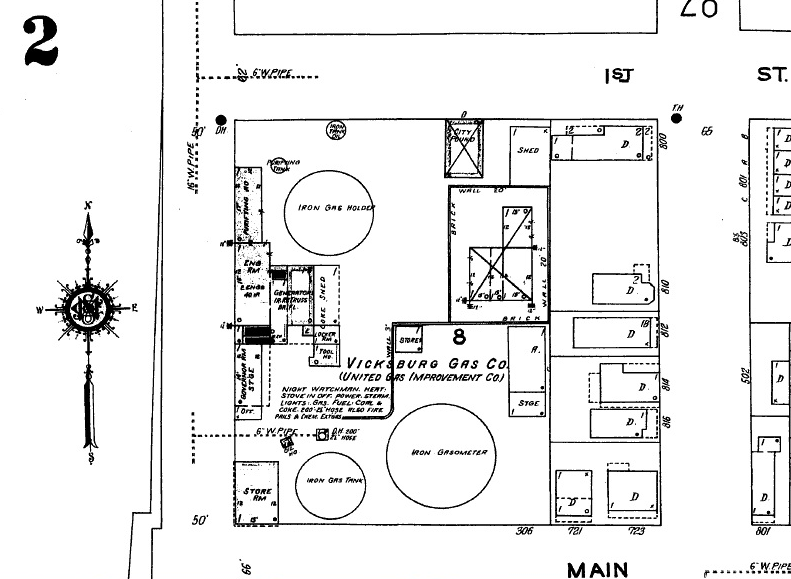
‘1925 sb vicksburg Gasworks’ Published September 30, 2014 at 791 × 579 in Mississippians with Gas Vicksburg Gas Light Co. Feb. 1925 ‹ Back
Leave a comment